Osmose Zac Rouget de lisle 94

Lots C2B & C2C

Maître d'Ouvrage / CIBEX

Maître d'Œuvre / Atelier Myriam SZWARC

Complexité du profil terrain 

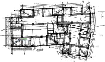
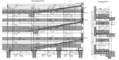
Osmose est un programme immobilier au cœur de la ZAC Rouget de L'isle de Vitry sur Seine. Ce projet de 104 logements est réparti en 5 bâtiments de R+2 à R+8. Pour appréhender la forte déclivité du terrain, le socle d’assise formant parc de stationnement est enterré sur 3 niveaux. Des techniques de soutènements provisoires par parois projetées butonnées ont permis de traiter la complexité structurelle du site.

Bâtiments R+

2 à 8

Logements

104

Contact

Pour échanger ensemble

Newsletter

Suivre nos actualités, abonnez-vous à la newsletter Structuriste®